

新聞中心
本周特推鋪源
2019.03.08
華遠(yuǎn)•海藍城(chéng)四期26#樓10101号鋪,底商一拖二!
華遠(yuǎn)•海藍城(chéng)位于東二環辛家廟地鐵口向東500米,項目占地660畝,總建面約120萬㎡,共分(fēn)六期開發,規劃68棟樓,預計(jì)近2萬戶,約6萬人(rén)口;四期位于北辰東路(lù)以東,玄武東路(lù)以北,由七棟高層和一棟獨立商業體(tǐ)組成,同時配套一所美國(guó)上市頂級幼教機(jī)構慧才苑幼兒園。

這套商鋪位于四期正門(mén)出入口,正面翡冷(lěng)翠大(dà)街,”金角銀邊“都(dōu)占了個全;海藍城(chéng)業主及周邊小區業主通過路(lù)口第一時間就(jiù)能看(kàn)見(jiàn)本套商鋪,商鋪位置顯眼且稀缺;翡冷(lěng)翠大(dà)街向西連接林邑和萬科(kē)金域東郡兩個住宅項目,林邑約6000戶,金域東郡約6800戶,合計(jì)約1.28萬戶,約4萬人(rén)口;商鋪直接輻射人(rén)口約10萬人(rén)口,後期潛力十足;


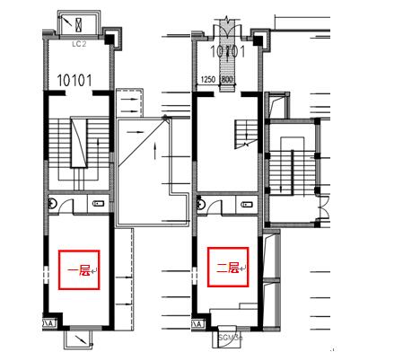
這套鋪子屬于一拖二商鋪,既享受了一層商鋪臨街的便利,又享受了二層商鋪受臨街影(yǐng)響小的特點;此套商鋪實測面積149.2㎡,層高4.2米,面寬3.6米,進深15米,戶型規整;适合教育、養生(shēng)、美容業等多種業态;目前周邊商鋪均已出租,商業氛圍濃厚,即買即收益!